
- 日程
- ※水・木以外
- 時間
- 10:00~17:00【予約制】
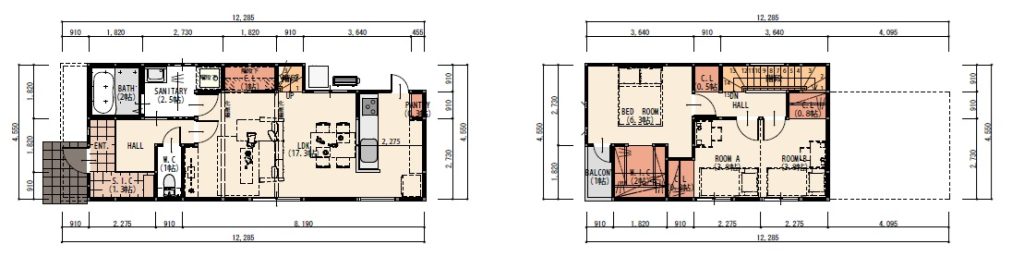
清和建売Ⅱがリニューアルしました!
カーポートつき、駐車場もコンクリートになっております☺
たくさんのご来場をお待ちしておりますので
ぜひ遊びにいらしてください♪
【時間】10:00~17:00

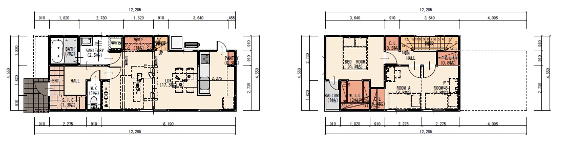
カーポートつき、駐車場もコンクリートになっております☺
たくさんのご来場をお待ちしておりますので
ぜひ遊びにいらしてください♪
【時間】10:00~17:00
New column
Category
2019 -2026 CANDO All rights reserved.