Loading...

建売・中古物件情報

田上六丁目一戸建住宅

鹿児島市田上六丁目に中古一戸建てが登場🏠✨
4LDKの二階建ての駐車3台可!

田上小まで徒歩約2分🏫

販売価格 3,080万円!

お気軽にお問合せ下さい!!

田上六丁目一戸建住宅

Check Point

駐車3台可

雨戸シャッター有

トイレ2箇所

カーポート付

食洗器付

浴室乾燥機付

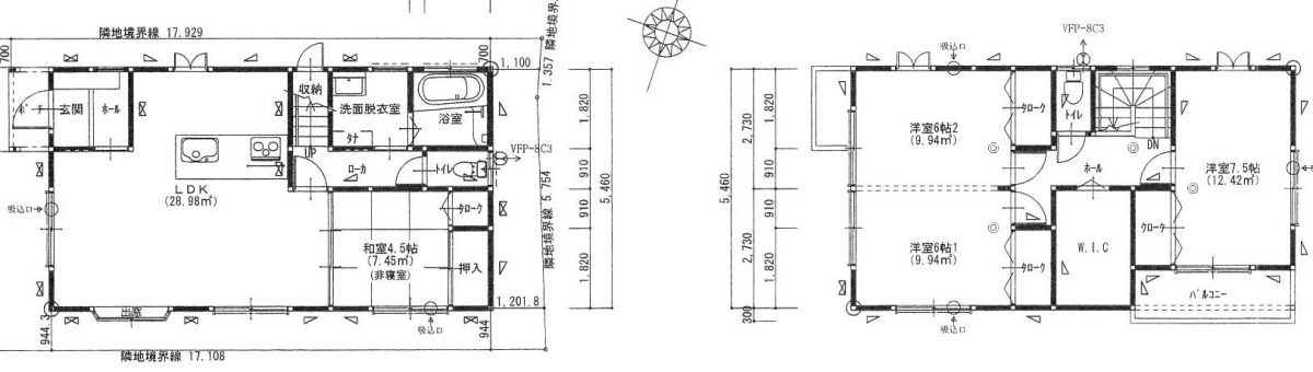
Plan

Plan

Facility & Ability

外構
エアコン
全室照明
食器洗乾燥機
エコキュート

Check Point

田上小学校まで徒歩約2分(約160m)

武中学校まで徒歩約18分(約1300m)

タイヨー田上店まで徒歩約4分(約280m)

鹿児島銀行田上支店まで徒歩約1分(約20m)

ファミリマート田上小前店まで徒歩約1分(約37m)

概要

所在地鹿児島市田上6丁目4-18付近
交通鹿児島交通「田上小前」停まで徒歩1分
都市計画市街化区域
用途地域第一種住居地域
設備オール電化、下水道
現況居住中
引渡日相談
完成年月平成30年10月(築6年)
取引状態専属専任媒介

価格

価格
3,080万円
敷地面積
124.55㎡(37.67坪)
施工面積
延床面積
105.99㎡(32.06坪)

MAP

この物件を予約する
ご来場
キャンペーン
開催中!
099-296-8881(本社) (本社)
0995-73-3778(姶良) (姶良)