田上台モデルⅡ~長期優良認定住宅~
鹿児島市田上台四丁目に新築モデル住宅が登場!
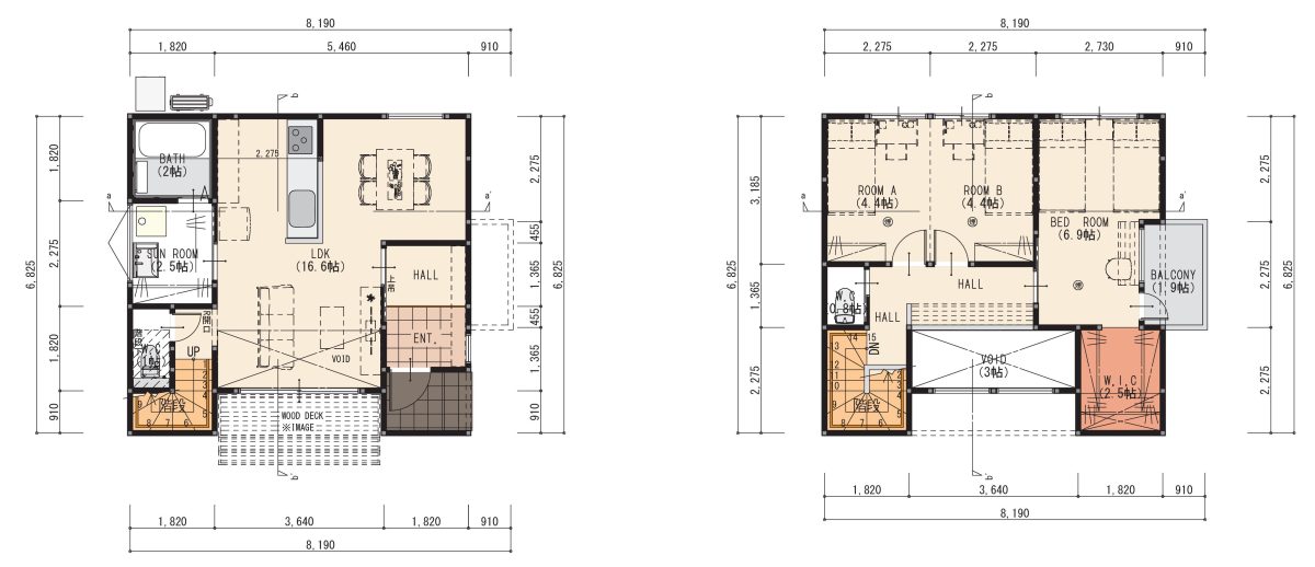
4LDKの2階建て🏠
長期優良認定住宅・モデルハウス仕様・ISO取得住宅の上質な住まいです✨
バス停まで徒歩1分!お店も近くにあるので毎日のお買い物も安心♪
ご購入申し込み先着受付中!2026年5月末完成予定!
※パースはイメージです
※ Googleマップの位置は目安になります。当日は旗・看板等を目安にご来場ください
Check Point
駐車3台可
長期優良認定住宅
モデルハウス仕様
地盤保証込み
耐震等級3認定
ISO取得住宅(現場監査システム)
サンルーム・W.I.C
Plan
Facility & Ability
Check Point
広木小学校まで徒歩約19分(約1500m)
紫原小学校まで徒歩約23分(約1800m)
コープ田上店まで徒歩約13分(約1000m)
しまむら田上店まで徒歩約16分(約1100m)
概要
| 所在地 | 田上台4丁目 |
|---|---|
| 交通 | JR鹿児島本線「広木駅」 |
| 構造 | 木造2階建て |
| 間取り | 3LDK |
| 都市計画 | 市街化区域 |
| 建ぺい率 | 50% |
| 容積率 | 80% |
| 完成年月 | 2026年5月末完成予定 |
| 小学校区 | 広木小学校 |
| 中学校区 | 紫原中学校 |
| 確認番号 | 第鹿建1250841号 |
| 取引様態 | 売主 |
価格
価格
3,290万円(税込)
敷地面積
138.45㎡(41.88坪)
施工面積
100.17㎡(30.30坪)
延床面積
85.28㎡(25.79坪)
