国分広瀬三丁目建売Ⅰ
国分広瀬3丁目に建売が登場!
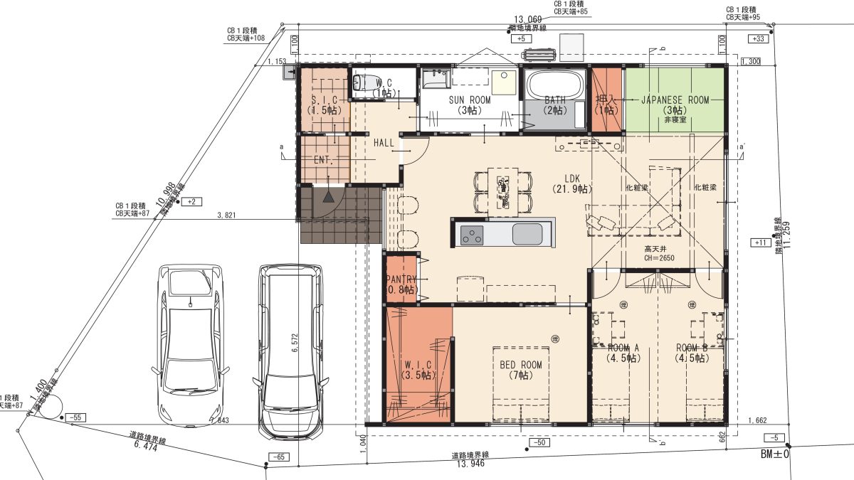
3LDK+畳コーナーの平屋です!
区画図の1号地に建設予定!
ご購入申し込み先着受付中!
※パースはイメージです
※ Googleマップの位置は目安になります。当日は旗・看板等を目安にご来場ください
Check Point
高天井に化粧梁が映えるLDK
駐車2台可
アイランド風キッチン
パントリー有
浴室乾燥付き
食洗機付
Plan
Facility & Ability
Check Point
国分西小学校まで徒歩約11分(約853m)
国分南中学校まで徒歩約36分(約3000m)
フレスポ国分まで徒歩約11分(約858m)
認定こども園国分西まで徒歩約7分(約548m)
竹の子幼稚園まで徒歩約11分(約866m)
概要
| 所在地 | 霧島市国分広瀬3丁目 |
|---|---|
| 交通 | 鹿児島交通「西広瀬」バス停まで徒歩約6分(約464m) |
| 構造 | 木造 平屋建て |
| 間取り | 3LDK+畳コーナー |
| 都市計画 | 非線引区域 |
| 建蔽率 | 60% |
| 容積率 | 200% |
| 小学校区 | 国分西小学校 |
| 中学校区 | 国分南中学校 |
| 建築確認番号 | 第2025-0924号 |
| 取引様態 | 売主 |
価格
価格
2,780万円(税込)
敷地面積
193㎡(58.38坪)
施工面積
98.75㎡(29.87坪)
延床面積
94.19㎡(28.49坪)


